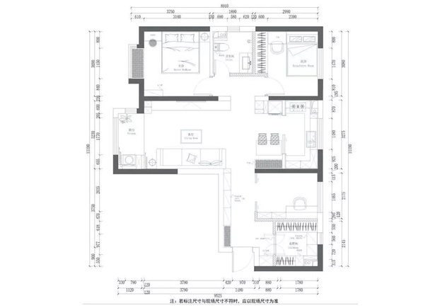
家居裝修,簡單舒適就行,家是一個很溫暖的地方,沒有外面世界的復雜,是自己的一片小小的世界。先來看一下平面圖:

1、客廳

電視柜半開放設計,黑框金屬玻璃門的搭配使得整個空間更富有立體感。
2、玄關

嵌入式玄關柜,下面是用木質板做成的換鞋凳,上面再設計掛鉤,這樣實用功能和裝飾作用都大大增強。
3、餐廳

餐廳比較小清新風,淡紫色的餐凳,木色和白色相間的墻面,顏色清新的裝飾畫,都讓人很舒適輕松。
4、廚房

廚房是整面純白色,沒有多余復雜的設計,在靠墻的一面設置立體置物架,可以放一些調料和炊具。
5、書房

書房的一邊是書架,一邊是裝飾畫,窗戶的采光性非常好,書房很通透明亮。
6、臥室

臥室比較沉穩大氣,玻璃門半開放式衣柜黑白相間,空間空曠開放,有點極簡風。
7、衣帽間

衣帽間襯衫、外套、衣服、鞋子,分類擺放,精致大氣。四季衣物擺放分明,玻璃櫥窗設計讓衣服簡潔明了,拿取方便。
8、多功能房:榻榻米

客臥榻榻米設計感獨特,大面積運用白色,會讓整個空間看上去明亮很多,地板是木色的瓷磚鋪貼,梯柜設計增加儲物空間,書房+衣柜+臥房+待客室,一室多用,功能滿分。